资讯
足球投注app因玄关用功合理收纳区且全体为异形结构-买球·(中国)投注APP官方网站

在装修新家时,咱们往往会字据自己居住需求对空间结构进行转化。然则,购买新址时,户型结构无疑是大众重心考量的身分。毕竟,若原户型能称心居住条目,思必没东谈主自得在装修时大动接触地转化结构。
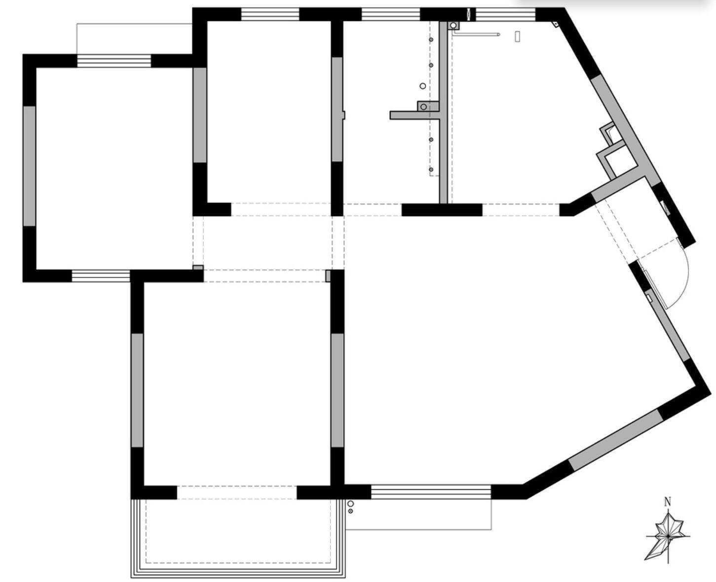
但本期的案例却别具一格。这套新址是东谈主东谈主嫌弃的“丑户型”,呈异形结构。可屋主配头为了方便经管父母,浮滑买下了这套紧邻父母小区的屋子。尽管结构不尽东谈主意,历程一番好意思妙转变,竟变化无常,成了温馨平静的雅居,的确令东谈主咋舌。

本案位于南京,面积113㎡,为三室两厅情势,屋主是一双中年佳偶,孩子在外求知。如前文所述,此房不仅是异形结构,室内还有诸多承重墙体,给二次转变带来极大界限。屋主期许新家实用、平静、清晰,相宜他们这个年齿段的审好意思。于是,统共空间围绕“朴雅”二字伸开策画。

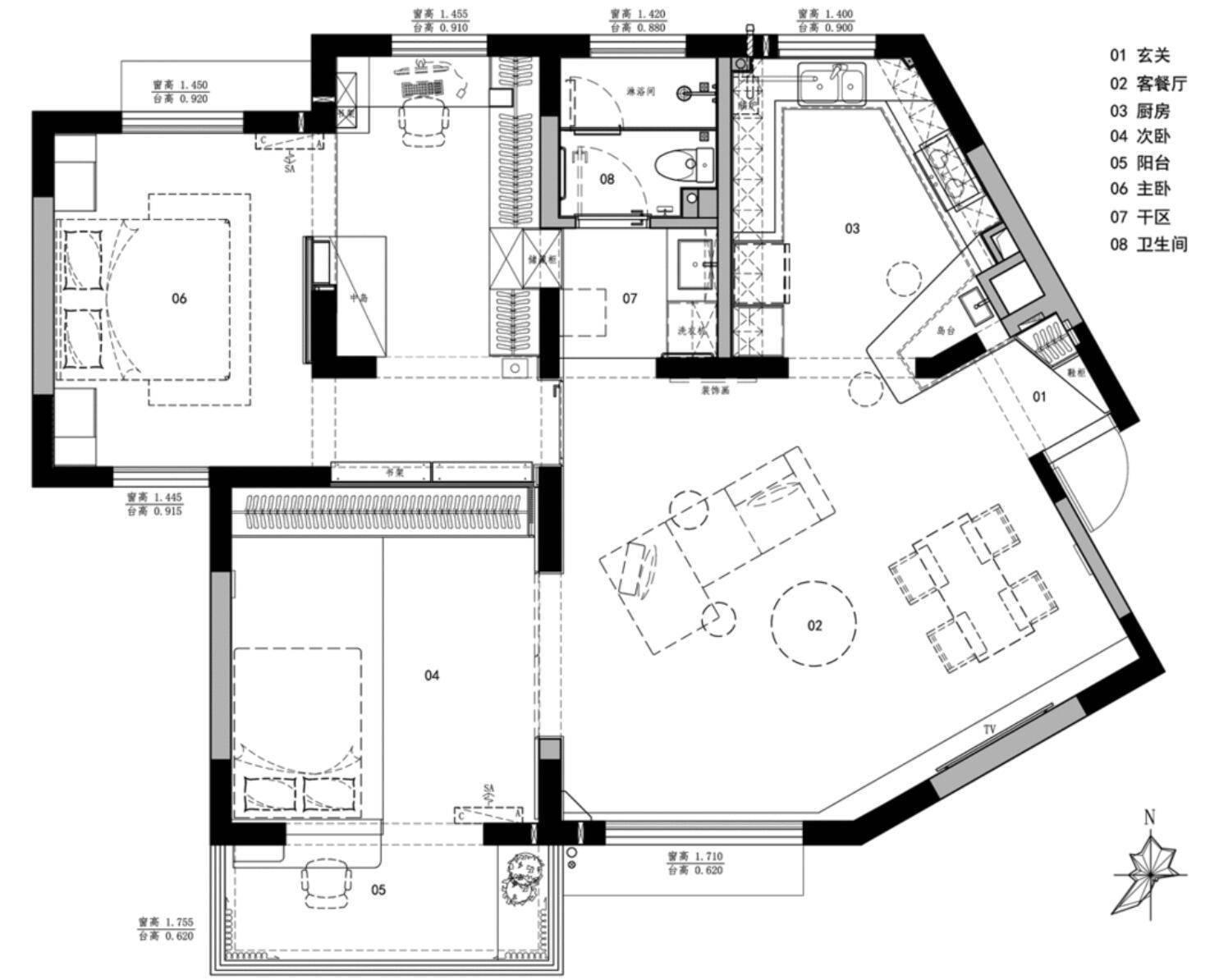
空间布局转变如下:
1、入户鞋柜吸收歪斜策画,幸免进门处拥堵。
2、客餐厅机动布局,为空间增添更多变化。
3、将原主卧门洞转化至客厅一侧,并基于功能性定位,拆除空间解放开合。
4、买通北面两间次卧,改形成套房行为主卧室使用。

从客厅看向玄关,因玄关用功合理收纳区且全体为异形结构,鞋柜便策画成异形。如斯,既科罚了进门拥堵问题,又完善了入户功能,与墙体也完好契合、长入。

鉴于客餐厅为异形,舍弃传统刻板布局,以灵动、解放边幅摆放沙发和餐桌,不仅在视觉上营造轩敞空间感,还为活命赋予更多变化,称心不同功能需求。
在空间基调设定上,通过大面积留白,穿插小数灰色元素,搭配温润原木柴质,使空间在从简与质朴间达到阴私均衡,也呼应了“朴雅”的空间主题。

顶面吸收无主灯策画,装置两根邻接大众区的磁吸轨谈灯,既赋予视觉更多景深,又迤逦起到动线指导作用。电视配景墙留白,将底部岩板地台延迟至窗户处,在纠合空间的同期强化视觉档次。


厨房相通是异形结构,橱柜依原墙体角度策画,勤俭空间。而厨房最大亮点,当属门洞旁的通俗吧台策画,与橱柜连成一体,称心平日简餐功能。

从吧台看向客厅,为最猛进程缓解入户拥堵,吧台与玄关间墙体作念镂空策画,营造窗景视感,增多空间互动。况兼,吧台上的水槽策画,在后疫情期间也较为常见。

北面两间次卧买通明,改形成集梳妆、阅读、起居、办公、休眠等功能于一体的套房。进门左侧墙柜吸收亚克力隔板策画,不仅梗阻成果佳,还好意思妙均衡了质朴与前锋,晋腾飞间质感。

部分墙体无法拆除,便平直内嵌一组吊挂式中岛柜,好意思妙保证空间精巧,还具备一定收纳才略。临窗策画的抽屉桌,为屋主提供了临时办公、阅读区域。


休眠区策画精真金不怕火,以大面积留白为主,搭配低豪阔度床品,清晰平静。吊挂式床头柜策画,让视觉更显轻细。

商酌到家中常住东谈主口仅屋主配头两东谈主,原主卧定位为功能间。将门洞转化到客厅这边,以圆窗边幅策画门,不仅拆除空间解放开合,视觉上还颇具园林小景韵味。

功能间里面吸收榻榻米布局,带来超强收纳才略,还能字据活命需求,生息出茶馆、书屋、客房、失业、手工等多种功能。

卫生间虽未进行结构转化,但干区策画好意思妙。左侧墙面设折叠式木板,搭配右侧洗衣机,晾衣、挂衣、叠衣皆十分简便。里面湿区精真金不怕火干净,便于平日清算。

本案虽是异形结构的“丑户型”,结构策画也未大刀阔斧,但空间领略不管是氛围感依然实用性皆卓越出色。尤其是卧室对调及卫生间干区处理,值得鉴戒。正如常言所说足球投注app,哪怕户型再不睬思,也能通过策画拆除改造。大众对此有何办法呢?
#户型转变 #室内策画 #异形结构 #家居好意思学